LG LSD4913ST/00 - Instrucciones
LG LSD4913ST/00 - Manual de uso en formato PDF en línea
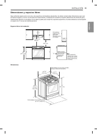
Instrucciones:
Manual de uso LG LSD4913ST/00
1

2

3

4

5

6

7

8

9

10

11

12

13

14

15

16

17

18

19

20

21

22

23

24

25

26

27

28

29

30

31

32

33

34

35

36

37

38

39

40

41

42

43

44

45

46

47

48

49

50

51

52

53

54

55

56

57

58

59

60

61

62

63

64

65

66

67

Other LG Otros Manuals
-
LG LSCG367ST/00 Manual de uso
-
LG LSCG367ST/00 Manual de instalación
-
LG LRG4113ST/00 Manual de uso
-
LG DLEX4370K/00 Manual de uso
-
LG LSSE3026ST/00 Manual de uso
-
LG LSE4613BD/00 Manual de uso
-
LG LRE3193ST/00 Manual de uso
-
LG LDS5040ST/00 Manual de instalación
-
LG LSWD309BD/00 Manual de uso
-
LG LSWD309BD/00 Manual de instalación
-
LG LRE3061BD/00 Manual de uso
-
LG LT0816CER/00 Manual de uso
-
LG DLGX4371W/00 Manual de uso
-
LG WM4370HKA/00 Manual de uso
-
LG DLE7200WE/00 Manual de uso
-
LG WT7200CW/00 Manual de uso
-
LG LSCG306ST/00 Manual de uso
-
LG LSCG306ST/00 Manual de instalación
-
LG LWS3063ST/00 Manual de uso
-
LG LWS3063ST/00 Manual de instalación