Página 3 - Indice
Advertencias e indicaciones de seguridad . . . . . . . . . . . . . . . . . . . . . . . . . . . . . . . . . . . . . . . . . . . . . . . . . . . . . . 4 Su contribución a la protección del medio ambiente . . . . . . . . . . . . . . . . . . . . . . . . . . . . . . . . . . . . . . . . . . . . . . 7 Desc...
Página 4 - Uso apropiado de la secadora; Seguridad técnica; Advertencias e indicaciones de seguridad
Explicaciones sobre las indicaciones deseguridad y advertencia de la máquina Lea las instrucciones de manejo. Lea las instrucciones, por ejemplo, lasinstrucciones de instalación. Precaución, superficie caliente. Precaución, tensión máxima de 1000 vol-tios. Toma a tierra Lea atentamente las "Inst...
Página 5 - Utilización
~ No se permite el emplazamiento de la secadora en la misma estancia con máquinas de limpieza quí-mica que utilizan disolventes que contienen CFC. Losvapores que despiden, se descomponen en ácidosclorhídricos en la combustión, lo que puede originardaños tanto en la ropa como en el aparato. Al ubicar...
Página 6 - Secadora con calefacción de gas; Utilización de accesorios
Secadora con calefacción de gas ~ En caso de anomalía o de limpieza y manteni- miento, deberán cerrarse la válvula de cierre de gasy el dispositivo de cierre en el contador de gas. ~ ¡Atención! Antes de finalizar los trabajos de pues- ta en funcionamiento, mantenimiento, modificación yreparación deb...
Página 7 - Eliminación del embalaje de transporte; Reciclaje de aparatos inservibles; Su contribución a la protección del medio ambiente
Eliminación del embalaje de transporte El embalaje protege al aparato de posibles dañosdurante el transporte. Los materiales del embalajehan sido seleccionados conforme a criterios ecológi-cos y teniendo en cuenta las técnicas de reciclaje dedesechos y, por tanto, son reciclables.La devolución del e...
Página 8 - Descripción del aparato
a Panel de mandos b Puerta La puerta se abre tirando del mango de la puerta. c Tapa de acceso al filtro de pelusas Abrir la tapa de acceso al filtro de pelusas con unallave. d Patas roscadas regulables (4 unidades) e Conexión eléctrica f Conexión a gas g Piloto de control de la calefacción de gas Se...
Página 9 - Descripción del aparato PT 8301
Panel de mandos PT 8301 Profitronic B control del tiempo 1 2 3 4 5 6 7 8 1 Indicación del segmento "Tiempo" 2 Indicación "Desarrollo del programa" 3 Tecla "Selección de temperatura" 4 Piloto de anomalía "Salida de aire" 5 Piloto de anomalía "Filtro de pelusas"...
Página 10 - Descripción del aparato PT 8303
Panel de mandos PT 8303 Profitronic B Plus control de humedad residual 1 2 3 4 5 6 7 8 1 Indicación del segmento "Humedad residual" 2 Indicación "Desarrollo del programa" 3 Tecla "Cuidado adicional" 4 Piloto de anomalía "Salida de aire" 5 Piloto de anomalía "Filtr...
Página 11 - Preparar la ropa; Secado
Preparar la ropa No todos los tejidos pueden introducirse en la se- cadora. Observe las indicaciones del fabricante textil en la etiqueta de cuidado. Los símbolos significan: q = Secado a temperatura normal r = Secado a temperatura baja s = No apto para el secado mecánico Clasifique la ropa por fibr...
Página 12 - Conectar la secadora e introducir la ropa
La instalación y la puesta en marcha de la seca- dora se realizarán exclusivamente por el Servicio Post-Venta de Miele o por personal técnico autori- zado. Antes de la primera puesta enfuncionamiento Antes de introducir ropa en la secadora, deberá lim-piar el interior del tambor con un paño suave y ...
Página 13 - Seleccionar la temperatura; Seleccionar el tiempo de secado; Fin del programa
Seleccionar la temperatura ^ Pulse la tecla "Selección de temperatura" y ajustela temperatura deseada de secado: en frío , baja , media , alta . El diodo correspondiente se ilumina. Ropa blanca/de color para el secado de tejidos de algodón/lino a alta tem- peratura. Sintéticos/Mezcla de algo...
Página 15 - Interrupción del programa; Después del secado
Después de finalizar un programa ^ Abra la puerta. Por razones de seguridad, si la puerta queda ce- rrada, la secadora se pone en marcha brevemen- te en intervalos de 30 minutos. ^ Extraiga la ropa.Cerciórese de que no queda ninguna prenda en eltambor. De lo contrario, las prendas olvidadas po-drían...
Página 17 - Cambio de programación
Cambiar programas de secado específicoshaciendo un cambio de programación(modificación de las opciones estándar) Algunos programas de secado se pueden modificarde forma individual adaptándolos así a deseos, hábi-tos y procedimientos específicos. En caso de utilización de un aparato recaudador no se ...
Página 18 - Funciones de programación del cliente
Funciones de programación del cliente Nº Función de programación Estándar Opción de programación P 1 Volumen de la señal acústica 1 0 = suave 1 = fuerte P 2 Señal acústica de finalización de programa 1 0= desactivada 1 = activada P 3 Función Memoria 1 0 = desactivada 1 = activada P 4 Notificación ac...
Página 19 - Mensajes de anomalía; Solución de pequeñas anomalías
Mensajes de anomalía Indicación Causa Solución N 0 Sobrepresión en la conducción de sa-lida de aire. Fugas en la conducción de aire. Controlar la conducción de salida de aire. Servicio Post-Venta N W Obstrucción del filtro de pelusas Limpie el filtro de pelusas. No es posible poner enmarcha la secad...
Página 20 - Filtro de pelusas; Secadora; Limpieza y mantenimiento
Filtro de pelusas , No ponga nunca la secadora en servicio sin el filtro de pelusas integrado. ¡Peligro de incendio! Un filtro de pelusas dañado deberá ser sustituidode inmediato.De lo contrario, las pelusas obstruirán los conduc-tos de aire, la calefacción y la salida de aire.De esta manera, no se ...
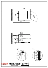
Página 21 - Emplazamiento y conexión
La instalación y la puesta en marcha de la seca-dora se realizarán exclusivamente por el ServicioPost-Venta de Miele o por personal técnico autori-zado. Este aparato debe instalarse según la normativa vi-gente y sólo debe utilizarse en una habitación con laventilación adecuada.Lea las instrucciones ...
Página 22 - Nivelar; Reducción del nivel de ruido
Nivelar No es necesario colocar una base para la secadora.Sin embargo, las irregularidades del suelo deberánnivelarse. Para un funcionamiento correcto es importante que lasecadora esté colocada en posición horizontal. Alinee horizontalmente la secadora mediante el ajus-te de las patas roscadas A . D...
Página 23 - Conexión eléctrica; Entrada de aire / salida de aire
Conexión eléctrica El equipamiento eléctrico de las secadoras cumplecon la normativa IEC 335-1 y IEC 335-2-11. La conexión eléctrica exclusivamente puede realizar-se por un técnico electricista autorizado bajo cumpli-miento de las directrices vigentes del país correspon-diente, p. ej. - VDE (Alemani...
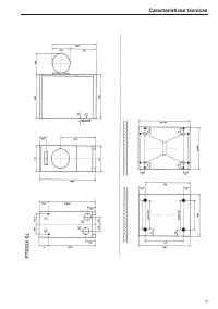
Página 24 - Datos técnicos
Modelo PT 830x EL/G Altura en mm 1800 Anchura en mm 710 Profundidad en mm 1063 Profundidad con la puerta abierta en mm 1716 Peso en kg 138,8/145,4 Contenido del tambor en l 300 Cantidad máxima de carga kg (ropa seca) 15 Tensión nominal Véase la placa de características Potencia nominal Véase la plac...