Página 2 - Contenido; Prelavado
Contenido 2 Su contribución a la protección del medio ambiente ........................................... 6 Advertencias e indicaciones de seguridad .............................................................. 7 Manejo de la lavadora ..................................................................
Página 3 - Instalación
Contenido 3 Interrupción de un programa y mensaje de anomalía ............................................... 39 En el display hay un mensaje de anomalía ................................................................. 40 Resultado de lavado insatisfactorio ............................................
Página 6 - Su contribución a la protección del medio ambiente; Eliminación del embalaje
Su contribución a la protección del medio ambiente 6 Eliminación del embalaje El embalaje se utiliza para la manipula-ción y protege el aparato de los dañosde transporte. Los materiales de emba-laje se seleccionan en función de aspec-tos compatibles con el medio ambientey de su eliminación y, por lo...
Página 7 - Advertencias e indicaciones de seguridad; Uso apropiado; La lavadora se debe utilizar según las instrucciones de manejo, re-
Advertencias e indicaciones de seguridad 7 Esta lavadora cumple todas las normas de seguridad vigentes. Noobstante, el manejo indebido del aparato puede provocar lesionespersonales y daños materiales.Lea las instrucciones de manejo con atención antes de poner enfuncionamiento la lavadora. Contienen ...
Página 8 - Seguridad técnica
Advertencias e indicaciones de seguridad 8 El uso de la lavadora por parte de niños mayores de 8 años sin su- pervisión está permitido solamente si se les ha explicado el manejode la máquina de tal forma que puedan utilizarla de forma segura. Losniños deben poder reconocer y comprender los posible...
Página 10 - Es posible el funcionamiento temporal o permanente en un siste-; No emplace la lavadora en estancias con riesgo de congelación.
Advertencias e indicaciones de seguridad 10 Es posible el funcionamiento temporal o permanente en un siste- ma de suministro de energía autosuficiente o no sincronizado con lared (como redes autónomas, sistemas de copia de seguridad). Un re-quisito previo para el funcionamiento es que el sistema d...
Página 12 - Accesorios
Advertencias e indicaciones de seguridad 12 En caso de que el detergente entre en contacto con los ojos, en- juagarlos inmediatamente con abundante agua tibia. En caso de in-gestión accidental, acudir inmediatamente al médico. Personas conlesiones cutáneas o piel sensible deben evitar el contacto ...
Página 13 - Manejo de la lavadora; Panel de mandos; Tecla sensora Idioma; Regresa al nivel anterior del menú.; Tecla sensora Start/Stop
Manejo de la lavadora 13 Panel de mandos a Tecla sensora Idioma Para seleccionar el idioma del usuarioactual.Tras finalizar el programa se visualizade nuevo el idioma de usuario. b Display Touch con teclas sensoras Muestra el programa seleccionado.Las teclas sensoras del display Touchse utilizan p...
Página 14 - Símbolos en el display; Programas
Manejo de la lavadora 14 Símbolos en el display Programas Otros símbolos Mopa Temperatura Mopas plus Número de revoluciones Paños Extras Paños plus Prelavado Paños grill Alisar extra Paños grill plus Microfibras Algodón PRO Aclarado plus Aceite/grasa especial Prelavad...
Página 15 - Las teclas sensoras; Menú básico; fugado ajustado
Manejo de la lavadora 15 Teclas sensoras y display Touchcon teclas sensoras Las teclas sensoras , y Start/ Stop , así como las teclas sensoras del display, reaccionan al tocarlas con losdedos. Cada pulsación se confirma conun sonido de tecla. El volumen del soni-do del teclado se puede cambiar o...
Página 16 - Ejemplos para el manejo; Listas de selección; Las flechas; Al tocar la tecla sensora; Selección sencilla; OK
Manejo de la lavadora 16 Ejemplos para el manejo Listas de selección Las flechas y en el lado derecho del display le indican que se trata deuna lista de selección. Idioma deutsch čeština english (AU) dansk Al tocar la tecla sensora la lista de se- lección se mueve hacia abajo. Al tocar l...
Página 17 - Primera puesta en funcionamiento; Daños por un emplazamiento y; Vaciar el tambor; Pulse la tecla
Primera puesta en funcionamiento 17 Daños por un emplazamiento y una conexión incorrectos.Pueden ocasionarse daños materia-les importantes a causa de un empla-zamiento y conexión incorrectos de lalavadora.Tenga en cuenta el capítulo «Instala-ción». Vaciar el tambor En el tambor puede encontrarse u...
Página 18 - Ajustar el idioma de display
Primera puesta en funcionamiento 18 Ajustar el idioma de display Se solicita ajustar el idioma del display.El idioma se puede modificar en cual-quier momento (véase el capítulo «Ni-vel de usuario», apartado «Idioma»). Idioma deutsch čeština english (AU) dansk Pulse la tecla sensora o has...
Página 19 - Seleccionar Agua prelavado
Primera puesta en funcionamiento 19 Configurar el aparato recauda-dor Si desea configurar un aparato recauda-dor, lea el capítulo «Nivel de usuario»,apartado «Aparato recaudador».Si no desea configurar ningún aparatorecaudador, puede omitir esta configu-ración. Sistema recaudador Sin sist.reca...
Página 20 - Retirar el seguro de transporte; Daños producidos por no retirar
Primera puesta en funcionamiento 20 Retirar el seguro de transporte El display recuerda que se debe retirarel seguro de transporte. Daños producidos por no retirar el seguro de transporte.No retirar el seguro de transportepuede producir daños en la lavadoray en los muebles/aparatos colindan-tes.Re...
Página 21 - no lavable
1. Preparar la ropa 21 Daños producidos por objetos extraños.Los cuerpos extraños como clavos,monedas o clips pueden dañar lasprendas o la máquina.Revise las prendas antes de lavarlas yretire los posibles cuerpos extraños. Daños producidos por productos que contengan disolventes.Los productos qu...
Página 22 - Cargar la lavadora; Abrir la puerta
2. Cargar la lavadora 22 Abrir la puerta Introduzca la mano en el hueco deagarre y tire del asa. Compruebe que no hay cuerpos ex-traños en el tambor antes de introdu-cir la ropa. Coloque los paños, las mopas o losdiscos en el tambor. Coloque la colada desdoblada y suel-ta en el tambor. Las pre...
Página 23 - Seleccionar programa; Conectar la lavadora; Seleccionar un programa; La tecla sensora
3. Seleccionar programa 23 Conectar la lavadora Pulse la tecla . Se conecta la iluminación del tambor. La iluminación del tambor se apaga au-tomáticamente transcurridos cinco mi-nutos o después del inicio del progra-ma. Seleccionar un programa El display de selección de programasmuestra cuatro p...
Página 24 - Dosificar el detergente; Cajetín del detergente; Dosificación del detergente; La dosificación depende:; Llenar el detergente; en el compartimento
4. Dosificar el detergente 24 Cajetín del detergente Puede utilizar cualquier detergente quesea apto para lavadoras. Dosificación del detergente Observe las recomendaciones de dosifi-cación del fabricante del detergente. La dosificación excesiva provoca unamayor formación de espuma.Evite la dosifica...
Página 25 - Tenga en cuenta el nivel máximo; Si se utiliza con frecuencia el; Productos decolorantes y tintes; Daños producidos por productos; Dosificación externa
4. Dosificar el detergente 25 Suavizante, apresto o almidón líquidoautomáticos Añada el suavizante, el apresto o el al-midón líquido en el compartimento . Tenga en cuenta el nivel máximo de llenado. El producto se añade en el último acla-rado. Al final del programa de lavadoquedará un poco de ag...
Página 26 - Iniciar un programa – Fin del programa; Aparato recaudador; Stop; Extraer la ropa
5. Iniciar un programa – Fin del programa 26 Aparato recaudador Si hay disponible un aparato recauda-dor, tenga en cuenta la solicitud de pagoen el display. No cancele el programa una vez inicia-do. Dependiendo de la configuración,es posible perder el importe en el apa-rato recaudador. Iniciar un pr...
Página 27 - Relación de programas; Mopas
Relación de programas 27 Mopas 60 °C máximo 7,0 kg Artículo Mopas de algodón, tejidos mixtos o microfibras Consejo - Utilice detergentes especiales adecuados. - Antes del lavado principal se realiza un centrifugado* y un prea- clarado. 1400 r.p.m. Extras: 2. preaclarado , Microfibras Aclarado...
Página 29 - Polvo/harina especial
Relación de programas 29 Polvo/harina especial de 40 °C a 90 °C máximo 7,0 kg Artículo Ropa de trabajo, toallas y paños de limpieza de algodón o tejidosmixtos sucios con polvo o harina Consejo - Con el prelavado automático se elimina la suciedad gruesa. Se- leccione además un segundo prelavado par...
Página 30 - Sintéticos/mezcla de algodón; Limpiar máquina
Relación de programas 30 Sintéticos/mezcla de algodón de 30 °C a 60 °C máximo 3,5 kg Artículo Para tejidos de fibras sintéticas, tejidos mixtos o algodón almido-nado delicado Consejo - En caso de tejidos que se arruguen con facilidad, reduzca el nú- mero de revoluciones del centrifugado final. - S...
Página 31 - Particularidades en el desarrollo del programa; Extras; Seleccione el ajuste de programa
Particularidades en el desarrollo del programa 31 Extras Cuando se configuran los programas fa-voritos es posible complementar losprogramas de lavado con extras.No todos los extras pueden seleccionar-se para cada programa de lavado. Si nose muestra un extra, no está permitidopara el programa de lava...
Página 32 - Modificar el desarrollo de un programa; Modificar programa
Modificar el desarrollo de un programa 32 Durante el funcionamiento con aparatorecaudador no es posible realizar mo-dificaciones o cancelar el programa. En caso de desconectar la lavadoradurante el programa en curso, la fun-ción Standby no desconecta por com-pleto la lavadora después de 15 minu-tos....
Página 33 - No es posible abrir la puerta si:
Modificar el desarrollo de un programa 33 Añadir ropa posteriormente oextraer ropa antes de tiempo Durante los primeros minutos despuésde iniciar un programa todavía es posi-ble introducir o retirar prendas. Toque la tecla Start/Stop . En el display aparece: Añadir prendas Cancelar el programa P...
Página 34 - Limpieza y mantenimiento; Riesgo de descarga eléctrica de-; Limpiar la carcasa y el panel; Daños producidos por un pro-; Limpiar el cajetín del detergente
Limpieza y mantenimiento 34 Riesgo de descarga eléctrica de- bido a la tensión de red.Solo deben realizarse trabajos de lim-pieza y mantenimiento en aparatossin corriente.Desconecte la lavadora de la redeléctrica. Limpiar la carcasa y el panel Daños producidos por un pro- ducto para la limpieza....
Página 35 - Limpiar el tubo de aspiración y el canal; Vuelva a colocar el tubo de aspiración.
Limpieza y mantenimiento 35 Limpiar el tubo de aspiración y el canal Extraiga el tubo de aspiración delcompartimento . Limpie el tubo de aspiración bajo elgrifo de agua caliente. Limpie tambiénel tubo por el que se aspira el suavi-zante. Vuelva a colocar el tubo de aspiración. Limpie con agu...
Página 36 - Inicie el programa; Limpiar la junta anular; Dejar la puerta ligeramente
Limpieza y mantenimiento 36 Limpiar el tambor, la cuba y elsistema de desagüe En caso necesario es posible limpiar eltambor, la cuba y el sistema de desa-güe. Inicie el programa Limpiar máquina . Introduzca detergente en polvo en elcompartimento del cajetín del de- tergente. Al finalizar el ...
Página 37 - Cierre el grifo del agua.
Limpieza y mantenimiento 37 Limpiar los filtros de entrada deagua La lavadora está equipada con filtros pa-ra proteger las válvulas de entrada deagua. Compruebe estos filtros aprox.cada 6 meses. En caso de interrupcio-nes frecuentes en la red de agua, esteintervalo de control puede ser más cor-to. L...
Página 38 - No es posible iniciar un programa de lavado; Problema; no se ilumina ni; Centrifugado
¿Qué hacer si...? 38 La mayor parte de las anomalías que se producen en el día a día las podrá solucio-nar usted mismo. En muchos casos se puede ahorrar tiempo y dinero, ya que evita-rá la intervención del Servicio Post-venta.Las siguientes tablas le ayudarán a encontrar las causas de un fallo o err...
Página 39 - Interrupción de un programa y mensaje de anomalía; al menos 2 minutos
¿Qué hacer si...? 39 Interrupción de un programa y mensaje de anomalía Problema Causa y solución Anomalía en el desa-güe. Limpie el filtrode desagüe y labomba. Compruebela manguera de de-sagüe El desagüe está bloqueado o no funciona correcta-mente.La manguera de desagüe está demasiado alta. Limp...
Página 40 - En el display hay un mensaje de anomalía
¿Qué hacer si...? 40 En el display hay un mensaje de anomalía 1 Problema Causa y solución Recipiente dosifica-dor vacío Uno de los recipientes de detergente para la dosifica-ción externa está vacío. Rellene los recipientes de detergente. Recipiente de dosifi-cación 1 vacío El recipiente de det...
Página 41 - Resultado de lavado insatisfactorio; Utilice detergente en polvo con blanqueadores.
¿Qué hacer si...? 41 Resultado de lavado insatisfactorio Problema Causa y solución La ropa no queda limpiacon detergente líquido. Los detergentes líquidos no contienen blanqueadores.Las manchas de fruta, café o té no se eliminan. Utilice detergente en polvo con blanqueadores. Introduzca quitaman...
Página 42 - Problemas generales con la lavadora
¿Qué hacer si...? 42 Problemas generales con la lavadora Problema Causa y solución La lavadora se muevedurante el centrifugado. Las patas de la máquina no están niveladas a la mismaaltura y no han sido aseguradas. Nivele la máquina de forma estable y asegure las pa-tas con contratuercas. Después d...
Página 43 - No es posible abrir la puerta; Pulse la tecla sensora; La puerta se desbloqueará y podrá abrirla.; El cierre de la puerta está bloqueado.
¿Qué hacer si...? 43 No es posible abrir la puerta Problema Causa y solución No es posible abrir lapuerta durante el progra-ma en curso. Durante el transcurso del programa, la puerta estábloqueada. Pulse la tecla sensora Start/Stop . Seleccione Cancelar programa o Añadir ropa . La puerta se desb...
Página 44 - Desagüe obstruido; Riesgo de sufrir escaldaduras por; Coloque un recipiente bajo la tapa.
¿Qué hacer si...? 44 Abrir la puerta en caso de desa-güe obstruido y/o fallo de red Riesgo de descarga eléctrica de- bido a la tensión de red.Solo deben realizarse trabajos de lim-pieza y mantenimiento en aparatossin corriente.Desconecte la lavadora de la redeléctrica. Abra la tapa hacia el sist...
Página 45 - Limpie el filtro de desagüe; Extraiga el filtro completamente.; Riesgo de sufrir lesiones debido
¿Qué hacer si...? 45 Limpie el filtro de desagüe Si no sale más agua: Extraiga el filtro completamente. Limpie el filtro de desagüe a fondo. Compruebe si las aletas de la bombade desagüe pueden girarse fácilmen-te. Dado el caso, elimine los cuerpos ex-traños (botones, monedas, etc.) y lim-pi...
Página 47 - Contacto en caso de anomalías
Servicio Post-venta 47 Contacto en caso de anomalías En caso de anomalías, que no pueda so-lucionar usted mismo, informe a su dis-tribuidor Miele o al Servicio Post-ventade Miele. Al final de este documento encontraráel número de teléfono del ServicioPost-venta de Miele. El Servicio Post-venta le so...
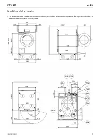
Página 48 - Vista frontal
Instalación *INSTALLATION* 48 Vista frontal a Manguera de entrada de agua fría b Manguera de entrada de agua calien-te c Conexión eléctrica d Panel de mandos e Cajetín del detergente f Puerta g Tapa para el filtro y la bomba de desa-güe o para la válvula de desagüe y eldesbloqueo de emergencia h Pat...
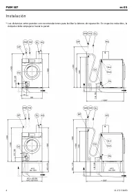
Página 49 - Vista posterior; Conexión eléctrica
Instalación *INSTALLATION* 49 Vista posterior a Conexión eléctrica b Interfaz para la comunicación conotros aparatos c Conexión para dosificación externa d Manguera de desagüe (variante LP) e Manguera de entrada de agua (aguafría) f Manguera de entrada de agua (aguacaliente), si está montada g Orifi...
Página 50 - Situaciones de emplazamiento; Vista lateral; No está permitido el emplaza-; Emplazamiento del zócalo; Riesgo de sufrir daños debido a
Instalación *INSTALLATION* 50 Situaciones de emplazamiento Vista lateral 1132 850 >1000 714 Columna lavado-secado min. 300 1702 La lavadora se puede instalar como co-lumna lavado-secado con una secadorade Miele. Para ello se requiere un kit deunión (accesorio opcional). No está permitido el emp...
Página 52 - Superficie de emplazamiento; Coloque la lavadora en una; Retirar la barra de transporte izquierda; Extraiga la barra de transporte.
Instalación *INSTALLATION* 52 Superficie de emplazamiento Un suelo de hormigón resulta lo másapropiado como superficie de emplaza-miento. A diferencia de un suelo de ma-dera o de características más inesta-bles, el suelo de hormigón no da lugar aoscilaciones perceptibles durante elcentrifugado. Co...
Página 53 - Retirar la barra de transporte derecha; Cerrar los orificios; Riesgo de sufrir lesiones por los
Instalación *INSTALLATION* 53 Retirar la barra de transporte derecha Presione la tapa hacia fuera y gire labarra de transporte izquierda 90° conla llave de boca adjunta. Extraiga la barra de transporte. Cerrar los orificios Riesgo de sufrir lesiones por los cantos afilados.Al introducir la man...
Página 54 - Fijar las barras de transporte; Asegúrese de que los orificios; Abrir las puertas; Eleve ligeramente el tambor
Instalación *INSTALLATION* 54 Fijar las barras de transporte Fije las barras de transporte en la pa-red posterior de la lavadora. Consejo: Asegúrese de que los orificios encajan sobre los vástagos . Daños por transporte incorrecto. En el caso de transportarla sin segurode transporte, la máqu...
Página 55 - Nivelar la lavadora
Instalación *INSTALLATION* 55 Nivelar la lavadora La lavadora debe estar nivelada correc-tamente y apoyarse de manera uniformesobre las cuatro patas para garantizar sufuncionamiento perfecto.Un emplazamiento inadecuado aumentael consumo de agua y energía, y la lava-dora podría desplazarse. Desenrosc...
Página 56 - Estribo de sujeción para zócalo; Posicionar el estribo de sujeción; Montar el estribo de sujeción
Instalación *INSTALLATION* 56 Estribo de sujeción para zócalo El estribo de sujeción evita que la lava-dora se caiga del zócalo durante su fun-cionamiento. La fijación mediante el estribo de suje-ción solo está pensada para zócalos dehormigón. El zócalo debe ser uniforme yhorizontal. La base del zóc...
Página 57 - Sistema de cobro
Instalación *INSTALLATION* 57 Monte el estribo de sujeción con lostornillos hexagonales y las arandelas. No apriete los tornillos del todo paraque el estribo de sujeción se puedadesplazar. Fijar la lavadora con un estribo de su-jeción Vuelva a desplazar la lavadora sobre elestribo de sujeción mo...
Página 58 - Conexión de agua; Conexión de agua fría; do principal; Mantenimiento
Instalación *INSTALLATION* 58 Conexión de agua Conexión de agua fría La lavadora puede conectarse a unaconducción de agua potable sin una vál-vula antirretorno ya que se ha fabricadosegún las normas DIN vigentes.La presión de flujo debe ser de al menos100 kPa y no debe superar los1.000 kPa. Si la pr...
Página 59 - Toma de agua caliente*
Instalación *INSTALLATION* 59 Toma de agua caliente* La temperatura del agua caliente no de-be pasar de los 70 °C.Para que el consumo de energía eléctri-ca durante el funcionamiento con aguacaliente sea el mínimo posible, debe co-nectarse la lavadora a una tubería circu-lar de agua caliente. Las tub...
Página 60 - Desagüe; Válvula de desagüe; Conexión a una pila con boquilla de
Instalación *INSTALLATION* 60 Desagüe Válvula de desagüe El vaciado del aparato se realiza por me-dio de una válvula de desagüe acciona-da por motor. La conexión a un sistemade drenaje en el suelo (sumidero con si-fón) en el lugar de instalación se puederealizar mediante una conexión acodadaDN 70 ha...
Página 61 - - La accesibilidad de la clavija debe es-
Instalación *INSTALLATION* 61 Conexión eléctrica La descripción es válida tanto para la-vadoras con clavija de red como paralavadoras sin clavija de red. Para lavadoras con clavija de red se apli-ca: - La lavadora está preparada para la co- nexión. - La accesibilidad de la clavija debe es- tar siemp...
Página 62 - Datos técnicos
Datos técnicos 62 Altura 850 mm Anchura 596 mm Anchura (para el aparato con tapa de aceroinoxidable) 605 mm Fondo 714 mm Fondo con la puerta abierta 1132 mm Peso aprox. 100 kg Carga máxima del suelo en funcionamiento 3000 newton Capacidad 7,0 kg de ropa seca Tensión nominal véase placa de caracterís...
Página 63 - Declaración de conformidad
Datos técnicos 63 Declaración de conformidad Por la presente, Miele declara que esta lavadora cumple con los requisitos de la di-rectiva europea 2014/53/EU. En el siguiente link encontrará el texto completo de la declaración de conformidadeuropea: - productos, descarga, en www.miele.es- Atención al ...
Página 64 - Nivel de usuario; Acceso mediante código; Salir del nivel de usuario
Nivel de usuario 64 El menú de ajustes en el nivel de usuario está bloqueado frente a acce-sos indeseados. Para acceder al menúes necesario un código. Acceso mediante código Para acceder al nivel de usuario es ne-cesario un código. El código es 000 (ajuste de fábrica). Modificar código Puede modif...
Página 65 - Ajuste de fábrica: desconectado
Nivel de usuario 65 Algunos ajustes solo son visibles cuan-do se conecta un aparato a la XCI-Box. Idioma El display puede mostrar diferentesidiomas. Puede seleccionar el idiomade usuario establecido a través delsubmenú Idioma. El idioma de operador para un programaen curso se puede cambiar a través ...
Página 67 - Parámetros de visibilidad; Seleccione el ajuste; únicamente; Agua 1er aclarado
Nivel de usuario 67 - Desconexión tras 30 minutos (ajuste de fábrica) Nombre de prog. Al seleccionar los programas estándar,se puede mostrar el nombre del pro-grama de lavado en el display. - Conectado (ajuste de fábrica) El nombre del programa se muestradurante unos segundos durante la se-lección d...
Página 68 - Mopas plus
Nivel de usuario 68 Presión del agua + baja En caso de una presión de agua infe-rior a 100 kPa (1 bar), se interrumpe elprograma y aparece el mensaje deanomalía Comprobar entrada de agua . En caso de no poder aumentar la pre-sión del agua del lugar de la instalación,la activación del ajuste Presión ...
Página 69 - Tiempo lav. prelavado; algodón
Nivel de usuario 69 Nivel blanca/ color En el programa Ropa blanca/de color se puede incrementar el nivel de aguapara el lavado principal. - + 0 mmWS (ajuste de fábrica)- + 10 mmWS- + 20 mmWS- + 30 mmWS Nivel Sint./Mezc. En el programa Sintéticos/Mezcla de algodón se puede incrementar el nivel de ag...
Página 70 - lor; Mostrar Favoritos
Nivel de usuario 70 Prelav. B/C/ Sint./Mezc. En los programas Ropa blanca/de co- lor y Sintéticos/Mezcla de algodón se puede seleccionar si el prelavado debeestar activado de forma permanente osi puede seleccionarse durante la se-lección de un programa. Ajuste de fábrica: Selección del menú Aclarado...
Página 72 - Sustituir o crear nuevos Favoritos; Eliminar Favoritos
Nivel de usuario 72 Extras OK Confirmar selec. Sustituir o crear nuevos Favoritos Puede cambiar un programa sustitu-yendo un programa ya existente. Obien, puede crear un programa nuevomarcando <vacío> . <vacío> Sint. / Mezcla Crear programa Pulse la tecla sensora del progra...
Página 73 - Dosificación automática; Valor de ajuste dosificación 1–6; Se utiliza el módulo WiFi interno.
Nivel de usuario 73 Reducción temp. Para evitar la ebullición anticipada delagua de lavado en altitud, se puede re-ducir la temperatura del agua de lava-do. Ajuste de fábrica: desconectado Dosificación automática Es posible activar la dosificación auto-mática a través de un sistema de dosi-ficación ...
Página 74 - Configuración del WiFi; Hora de red; vos
Nivel de usuario 74 WiFi/LAN Controle la conexión en red de su lava-dora. - Configurar Este mensaje aparece únicamente sila lavadora aún no está conectadacon una red WiFi. - Desactivar (visible cuando la red está activada). La red permanece configurada, la fun-ción WiFi se desconecta. - Activar (vis...
Página 75 - Señal carga de pico
Nivel de usuario 75 Señal carga de pico La desconexión por carga máxima per-mite conectar la lavadora a un sistemade gestión de energía. Cuando se re-gistra una señal, la calefacción de la la-vadora se desconecta brevemente. Lalavadora solo se puede utilizar con unsistema de carga máxima si está co-...
Página 76 - Gasto energ. controlado; Ropa blanca; Información legal
Nivel de usuario 76 Gasto energ. controlado En los programas Ropa blanca , Ropa de color y Sintéticos/Mezcla de algo- dón se garantiza un consumo de ener- gía óptimo cuando la opción Gasto energ. controlado está conectada. Ajuste de fábrica: conectado Información legal Licencias de código abierto Aq...
Página 77 - Ajustes para aparatos recaudadores
Nivel de usuario 77 Aparato recaudador Para la conexión a un dispositivo decobro se necesita una unidad acceso-ria XCI-AD o XCI-Box. Solicite información al Servicio Post-venta de Miele en caso de que quierarealizar alguna modificación posterior-mente. Ajustes para aparatos recaudadores Debe conecta...
Página 78 - Programas gratuitos; Eliminar señal de pago
Nivel de usuario 78 - 4 minutos después del inicio del pro- grama - 5 minutos después del inicio del pro- grama Programas gratuitos En el modo con monedas se puededeterminar si el programa Desagüe/ Centrifugado puede utilizarse gratuita- mente. Ajuste de fábrica: desconectado Eliminar señal de pago ...