Miele PWM 916 [SD DV DD ST] - Instrucciones

Miele PWM 916 [SD DV DD ST] - Manual de uso, Manual, Manual de instalación, Guía rápida en formato PDF en línea
Instrucciones:
Manual de uso Miele PWM 916 [SD DV DD ST]




































































Resumen
Su contribución a la protección del medio ambiente 2 Eliminación del embalaje de transporte El embalaje protege a la lavadora de daños durante el transporte. Losmateriales del embalaje se han seleccionado siguiendo criterios eco-lógicos y en función de su posterior tratamiento en plantas de recicla-...
Contenido 3 Su contribución a la protección del medio ambiente .................................................. 2 Reciclaje de aparatos inservibles ...................................................................................... 2 Advertencias e indicaciones de seguridad .......................
Contenido 5 Manejo/indicación ............................................................................................................. 55 Idioma ........................................................................................................................... 55Acceso al idioma ..........
Advertencias e indicaciones de seguridad 7 Esta lavadora cumple todas las normas de seguridad vigentes. Noobstante, el manejo indebido del aparato puede provocar lesionespersonales y daños materiales. Lea las instrucciones de manejo con atención antes de poner enfuncionamiento la lavadora. Contienen...
Advertencias e indicaciones de seguridad 8 Aplicación adecuada Esta lavadora ha sido diseñada exclusivamente para lavar tejidos que hayan sido etiquetados por el fabricante como aptos para el la-vado a máquina. Cualquier otro tipo de utilización podría ser peligro-so. El fabricante no se hace resp...
Advertencias e indicaciones de seguridad 9 Uso erróneo previsible Nunca utilice productos de limpieza que contengan disolventes (p. ej., bencina) en la lavadora. Los componentes del aparato puedenresultar dañados y emitir vapores tóxicos. ¡Existe riesgo de incendio y de explosión! Cuando lave a ...
Advertencias e indicaciones de seguridad 10 Seguridad técnica Compruebe que la lavadora no presenta ningún tipo de daño en el exterior antes de su emplazamiento. Una lavadora dañada no se de-be emplazar ni poner en funcionamiento. La seguridad eléctrica de esta lavadora solo quedará garantizada ...
Advertencias e indicaciones de seguridad 12 Uso apropiado La capacidad de carga máxima es de 12 kg de ropa seca para la PW 912, de 16 kg para la PWM 916 y de 20 kg para la PW 920. En elcapítulo «Relación de programas» encontrará las cantidades de cargareducidas para cada programa. Retire los seg...
Advertencias e indicaciones de seguridad 14 El cloro y los daños en los componentes Con el uso cada vez mayor de cloro aumenta la probabilidad de dañar los componentes. El uso de productos que contienen cloro como, por ejemplo, el hi- poclorito sódico y lejías de cloro en polvo puede dañar la ca...
Advertencias e indicaciones de seguridad 15 Accesorios Los accesorios pueden acoplarse o montarse solo si están expre- samente autorizados por Miele. El montaje de piezas no autorizadasinvalidará todo derecho de garantía. Reciclaje de apa-ratos inservibles Inutilice el cierre de la puerta cuando...
Descripción de la máquina (con cajetín de detergente) 16 Variantes con cajetín de detergente (WEK) ⑪ ⑥ ⑦ ⑧ ⑨ ⑩ ⑫ ① ② ③ ④ ⑤ ⑧ ⑬ ⑮ ⑭ ⑯ ⑰ ⑱ a Display Véase el capítulo «Funcionamiento de loselementos de manejo» b Interruptor de parada de emergencia véase el capítulo «Funcionamiento de loselementos de m...
Descripción de la máquina (con cajetín de detergente) 17 Variantes de aparato sin cajetín de detergente (WEK) ① ② ③ ④ ⑤ ⑥ ⑦ ⑧ ⑨ ⑩⑪ ⑦ ⑫ ⑭ ⑬ ⑮ ⑯ ⑰ a Display Véase el capítulo «Funcionamiento de loselementos de manejo» b Interruptor de parada de emergencia véase el capítulo «Funcionamiento de loselemen...
Manejo 18 Panel de mandos a Tecla sensora Idioma Para seleccionar el idioma delusuario actual.Tras finalizar el programa se vi-sualiza de nuevo el idioma deusuario. b Tecla sensora Atrás Regresa al nivel anterior delmenú. c Display Touch d Tecla sensora Start/Stop Inicia el programa de lavad...
Manejo 19 Teclas sensoras y display Touch con teclas sensoras Las teclas sensoras , y Start/Stop , así como las teclas sen- soras del display, reaccionan al tocarlas con los dedos. Cada pulsa-ción se confirma con un sonido de tecla. Puede cambiar o desconec-tar el volumen del sonido del teclado ...
Manejo 22 Manejo de la variante de lavandería En función del estado de programación, el menú de acceso puedemostrarse de diferentes formas (véase el capítulo «Nivel de usuario»,apartado «Manejo»). El manejo simplificado se realiza a través de la selección directa. Losusuarios no pueden modificar los...
Preparación del lavado 23 Vaciar los bolsillos Vacíe todos los bolsillos. Daños producidos por objetos extraños. Los cuerpos extraños como clavos, monedas o clips pueden dañarlas prendas o la máquina.Revise las prendas antes de lavarlas y retire los posibles cuerposextraños. Capacidad de carga (...
Preparación del lavado 24 Cargar la lavadora Conecte la lavadora con la tecla . Abra la puerta tirando del tirador. Coloque la ropa desdoblada y suelta en el tambor. Las prendas dedistinto tamaño mejoran el resultado del lavado y se distribuyenmejor durante el centrifugado. En el caso de car...
Seleccionar un programa 25 Conectar la lavadora Pulse la tecla . Seleccionar un programa 11:02 Programas Favoritos Operario Ayuda Existen varias opciones para seleccionar un programa. Puede seleccionar un programa en el menú Programas . Pulse la tecla sensora Programas . 11:02 Ropa ...
Seleccionar los ajustes del programa 26 Seleccionar la carga En algunos programas se puede especificar la carga para permitiruna dosificación externa en función de la carga. Pulse la tecla sensora Peso . Introduzca un valor válido para la cantidad de carga. El display cambia al menú Vista gener...
Lavado con cajetín de detergente 27 Introducción de detergente a través del cajetín En el caso de los programas estándar se introduce detergente enpolvo para el lavado principal en la bandeja de admisión de deter-gente y, si se desea, detergente para el prelavado en la bandeja de admisión de de...
Lavado con cajetín de detergente 28 Blanqueadores Blanquee únicamente tejidos que estén marcados con el símbolo decuidados Δ . La adición de blanqueadores líquidos solo se puede llevar a cabo enuna bandeja de admisión específica para tal fin. Solo así se garantizaque el producto se incorpora correc...
Lavado con cajetín de detergente 29 Dosificación del detergente Dosificación deldetergente Por principio se deberá evitar una dosificación excesiva, ya que pro-voca una mayor formación de espuma. - No utilizar detergentes que generen mucha espuma. - Observar las indicaciones del fabricante. La dosif...
Iniciar un programa – Fin del programa 30 Iniciar un programa La tecla sensora Start/Stop parpadea en cuanto es posible iniciar un programa. Pulse la tecla sensora Start/Stop . La puerta se bloquea (símbolo ) y comienza el programa de lavado. Si se ha seleccionado una Preselección de inicio, est...
Timer 31 El Timer le permite seleccionar el tiempo que queda hasta el inicio, lahora de inicio o el final del programa. Ajustar el timer Pulse la tecla sensora Timer . Seleccione la opción Fin a las , Inicio en o Inicio a las . Ajuste las horas y los minutos y confirme con la tecla OK . Mo...
Solución de pequeñas anomalías 32 Fallo de tensión durante el proceso de lavado Desconecte la máquina. Desconecte el interruptor (del lugar de la instalación). Cierre las válvulas de retención del lugar de la instalación para elagua o vapor. Para extraer la ropa en primer lugar se deberá cerra...
Solución de pequeñas anomalías 33 Gire el elemento de desbloqueo con hexágono interior con una lla-ve Torx T 40 dos vueltas completas en el sentido contrario a las agujas del reloj (hacia la izquierda) . Consejo: Presionando al mismo tiempo la puerta se facilita el giro del desbloqueo de emergenci...
Solución de pequeñas anomalías 34 Servicio Post-venta En caso de anomalía, diríjase al Servicio Post-venta de Miele. El Servicio Post-venta necesitará saber el modelo, número de serie(SN) y el número de material (nº de mat.). Encontrará estos datos enlas placas de características. Encontrará la plac...
¿Qué hacer si ...? 35 Ayuda en caso de anomalías La mayoría de las anomalías y fallos que se pueden producir durante el funcionamientocotidiano, los podrá solucionar usted mismo. En la mayoría de los casos podrá ahorrartiempo y costes sin necesidad de recurrir al Servicio Post-venta. Las siguientes ...
¿Qué hacer si ...? 36 Resultado de lavado insatisfactorio Problema Causa y solución La ropa no queda limpiacon detergente líquido. Los detergentes líquidos no contienen blanqueadores. Lasmanchas de fruta, café o té no se eliminan. Utilice detergente en polvo con blanqueadores. Introduzca quitama...
¿Qué hacer si ...? 37 Problemas generales con la lavadora Problema Causa y solución La lavadora se mueve du-rante el centrifugado. Las patas de la máquina no están niveladas a la misma al-tura y no han sido aseguradas. Nivele la lavadora de forma estable y asegure las patasdel aparato con contratu...
¿Qué hacer si ...? 38 Posibles causas del aumento de formación de espuma Problema Causa y solución Aumento de la formaciónde espuma durante el pro-ceso de lavado. No se está utilizando un tipo de detergente adecuado. Utilice detergente que sea apto para lavadoras industria-les. Los detergentes dom...
¿Qué hacer si ...? 39 Estiramiento de las prendas grandes de ropa Problema Causa y solución Estiramiento de las pren-das grandes de ropa du-rante el centrifugado Puede suceder que las prendas grandes de ropa se estirendurante el centrifugado. Esto se puede evitar en su mayor parte con un cambiode ...
Limpieza y mantenimiento 40 Realice la limpieza y mantenimiento de la máquina después de suuso si fuera posible. No deberán emplearse chorros de agua o dispositivos de alta pre-sión para limpiar la lavadora. Limpie la carcasa de la lavadora, el panel de mandos y las pie- zas de plástico únicamen...
Instalación 43 Emplazamiento de la lavadora Únicamente podrá emplazar y poner en marcha la lavadora el Ser-vicio Post-venta de Miele o un distribuidor autorizado. Respete lasindicaciones del esquema de instalación. Esta lavadora solo es apta para lavar ropa que no esté impregnadacon sustancias de tr...
Instalación 44 Simplificación del mantenimiento No se deberán sobrepasar las medidas mínimas ni la distancia a lapared con acceso a fin de facilitar al Servicio Post-venta los trabajosposteriores de mantenimiento. Mantenga las medidas mínimas indicadas y la distancia a la pared. Distancia mínima a...
Instalación 45 Seguro de transporte Retire los seguros de transporte Cada uno de los dos seguros de transporte delanteros está fijado contres tornillos hexagonales. El seguro de transporte trasero está fijadocon cuatro tornillos hexagonales. Los seguros de transporte debenretirarse en el lugar de em...
Instalación 46 Desenroscar los tornillos situados en el borde inferior de la paredposterior y retirar esta última. Suelte los tornillos hexagonales para desmontar los seguros detransporte. Conserve los seguros de transporte. Estos deberán volver a mon-tarse antes de transportar la máquina. Conex...
Instalación 48 Desagüe Desagüe AV de la máquina DN 70, manguito del lugar de instalación DN 70. Caudal a corto plazo 200 l/min.Si la pendiente de desagüe es demasiado inclinada, se deberá colo-car un tubo de ventilación para que no se pueda producir el vacío enel sistema de desagüe de la lavadora. ...
Extras 49 Puede complementar los programas con ayuda de los extras. No todos los extras pueden seleccionarse para cada programa de la-vado. Si no se muestra un extra, no está permitido para el programade lavado. Seleccionar extras Pulse la tecla sensora Extras . Seleccione uno o varios de los e...
Extras 50 Parada de adición El agua se evacúa antes del último aclarado, el programa se detiene.Los productos de tratamiento posterior, como puede ser el almidón,se pueden añadir a través del WEK. El programa continúa al pulsar la tecla Start/Stop .
Particularidades en el desarrollo del programa 51 Centrifugado Número de revo-luciones del cen-trifugado final Al seleccionar un programa, en el display se indica siempre el númeromáximo de revoluciones del centrifugado para el programa de lava-do. Es posible reducir el número de revoluciones del ce...
Modificar el desarrollo de un programa 52 Modificar programas Modificar un pro-grama de lavado Para seleccionar otro programa, antes deberá cancelar el programainiciado y seleccionar el nuevo programa. Cancelar programa Puede cancelar en todo momento un programa de lavado una vez sehaya iniciado. ...
Nivel de usuario 54 Acceder al nivel de usuario Conecte la lavadora. 11:02 Programas Favoritos Operario Ayuda Pulse la tecla sensora Operario . El display cambia al menú Niveles de manejo . Acceso mediante código Para acceder al nivel de usuario es necesario un código. El código es 0...
Nivel de usuario 55 Manejo/indicación Idioma El display puede mostrar diferentes idiomas. Puede seleccionar el idioma de usuario es-tablecido a través del submenú Idioma. El idioma de operador para un programa en curso se puede cambiar a través de la teclasensora . Acceso al idioma El display pued...
Nivel de usuario 56 Hora Una vez seleccionado el formato de hora, es posible ajustar la hora. Formato de hora - Reloj de 24 h - Reloj de 12 h - Sin hora Ajustar - Se puede ajustar la hora. Fecha Una vez seleccionado el formato de fecha, es posible ajustar la fecha. Formato de fecha - DD.MM.AAAA - AA...
Nivel de usuario 57 Est. Máquina desconectada Para ahorrar energía, la lavadora se desconecta automáticamente una vez finalizado elprograma o si no se realiza ninguna operación. Esto puede modificarse. La modificación de este ajuste produce un mayor consumo de energía. - Sin desconexión - Desconexió...
Nivel de usuario 58 Selección de programa Manejo Puede ajustar la lavadora para que funcione como «Variante de lavandería». El manejosimplificado se realiza a través de la selección directa. Los usuarios no pueden modificarlos programas preestablecidos. Consejo: Consejo: Realice todos los ajustes y ...
Nivel de usuario 59 Paquete de programas La selección de programas se puede ampliar activando programas individuales de los pa-quetes de programas para grupos de destinatarios. Los programas seleccionados (marcados en naranja) de los paquetes de programas semuestran en el display durante la selecció...
Nivel de usuario 60 Técnica de procesos Protección antiarrugas La protección antiarrugas reduce la formación de arrugas después de finalizar el progra-ma. El tambor sigue en movimiento hasta 30 minutos después de finalizar el programa. La puerta de la lavadora se puede abrir en cualquier momento. Aj...
Nivel de usuario 61 Entrada de agua Prelavado Es posible seleccionar el tipo de agua para el prelavado. - Fría En el prelavado solo se utiliza agua fría. - Caliente En el prelavado también se utiliza agua caliente.La entrada de agua caliente solo está permitida si se ha seleccionado una temperaturas...
Datos técnicos 62 Datos del aparato PWM 912 Conexión eléctrica Tensión nominal véase la placa de características Frecuencia véase la placa de características Consumo de potencia véase la placa de características Consumo de corriente véase la placa de características Fusible necesario véase la placa ...
Datos técnicos 63 Datos del aparato PWM 916 Conexión eléctrica Tensión nominal véase la placa de características Frecuencia véase la placa de características Consumo de potencia véase la placa de características Consumo de corriente véase la placa de características Fusible necesario véase la placa ...
Datos técnicos 64 Datos del aparato PWM 920 Conexión eléctrica Tensión nominal véase la placa de características Frecuencia véase la placa de características Consumo de potencia véase la placa de características Consumo de corriente véase la placa de características Fusible necesario véase la placa ...
Datos técnicos 65 Declaración de conformidad de la UE Por la presente, Miele declara que esta lavadora cumple con los requisitos de la directivaeuropea 2014/53/EU.En el siguiente link encontrará el texto completo de la declaración de conformidad euro-pea: - En www.miele.de/professional/index.htm en ...
Protección de datos de la WiFi 66 Protección de datos y seguridad de los datos En cuanto se activa la función de conexión en red y su aparato se haconectado a Internet, este envía los siguientes datos a la nube deMiele: - Número de fabricación del aparato - Modelo de aparato y equipamiento técnico -...
Manual Miele PWM 916 [SD DV DD ST]
























































































































































































































































































































































































































































































































































































Resumen
es - Contenido 150 Relación de programas ............................................................................................................... 152 Extras seleccionables ................................................................................................................... 152 E...
es - Relación de programas 152 Extras seleccionables Extra Símbolo Descripción Preaclarado Preaclarado antes de que comience el proceso de lavado Prelavado Prelavado antes de iniciarse el lavado principal Poner en remojo Bloque al comienzo del lavado principal, 30 °C, con pocomovimiento Agua p...
es - Relación de programas 153 Programas básicos de la relación de programas El tiempo de lavado es el tiempo en el lavado principal que se lava al menos una vez des- pués de que se haya alcanzado la temperatura objetivo. Aquí no se registran los tiemposde entrada de agua, dosificación, calentamient...
es - Relación de programas 154 Programas Ropa de color Ropa de color 60 °C (frío hasta 60 °C) Proporción de lle-nado/capacidadde carga Tipo de tejido Prendas de algodón, lino o tejidos mixtos con su-ciedad normal, p. ej. ropa de cama o toallas 1:9 PWM 912 – 12 kgPWM 916 – 16 kg PWM 920 – 20 kg Desar...
es - Relación de programas 156 Programas Ropa delicada/Camisas/Lana Ropa delicada 30 °C (frío a 60 °C) Capacidad de car-ga/cantidad Tipo de tejido Fibras sintéticas, seda artificial 1:25 PWM 912 – 4,4 kg PWM 916 – 5,6 kg PWM 920 – 7,2 kg Desarrollo del pro-grama Lavado principal hasta 60 °C, tiempo ...
es - Relación de programas 157 Programa Aclarado extra Aclarado extra Capacidad de car-ga/cantidad Tipo de tejido Prendas que solo se deben aclarar y centrifugar 1:9 PWM 912 – 12 kgPWM 916 – 16 kg PWM 920 – 20 kg Desarrollo del pro-grama 1 lavadocentrifugado final Extras Stop llenado, Stop aclarados...
es - Relación de programas 158 Programa Limpiar máquina Limpiar máquina 70 °C (de 70 °C a 90 °C) Tipo de tejido Sin carga Desarrollo del pro-grama + tecla Intensivo: lavado principal adicional hasta 90 °C, tiempo de lavado 6 min2 aclaradosDesagüe Extras Remojo, Agua plus, Intensivo, Aclarado plus...
es - Relación de programas 159 Relación de programas Hoteles/Restaurantes/Catering Este ámbito comprende una gran variedad de tejidos con diferentes grados de suciedad.Este programa está indicado para lavar ropa de cama y toallas de mano con poca suciedad,mantelerías más sucias o hasta ropa de cocin...
es - Relación de programas 160 Programa Ropa de rizo wellness Ropa de rizo wellness 50 °C (frío hasta 90 °C) Proporción de lle-nado/capacidadde carga Tipo de tejido Ropa de cama y toallas blancas y de color de al-godón, lino o tejidos mixtos muy sucios con res-tos de aceite o grasa 1:13* PWM 912 – 8...
es - Relación de programas 161 Programa Paños de cocina Paños de cocina 90 °C (frío a 90 °C) Capacidad de car-ga/cantidad Tipo de tejido Ropa de cocina de algodón, lino o tejidos mixtos 1:13 PWM 912 – 8,6 kg PWM 916 – 10,8 kg PWM 920 – 13,8 kg Desarrollo del pro-grama Preaclaradolavado principal has...
es - Relación de programas 162 Relación de programas Edredones/Cortinas Programas Cortinas Cortinas 40 °C (frío a 60 °C) Capacidad de car-ga/cantidad Tipo de tejido Fibras sintéticas, seda artificial 1:25 PWM 912 – 4,4 kg PWM 916 – 5,6 kg PWM 920 – 7,2 kg Desarrollo del pro-grama Lavado principal ha...
es - Relación de programas 163 Programas Edredones Estos programas están indicados para lavar edredones y fundas con relleno sintético, deplumas o de pelo natural. Estos programas de lavados han sido ideados exclusivamente para lavar prendas que ha-yan sido etiquetadas por el fabricante como aptas p...
es - Relación de programas 164 Capacidades de carga para edredones Las cantidades máximas de carga pueden consultarse en la siguiente tabla. Se trata de va-lores aproximados que pueden variar dependiendo del tamaño y del grosor de los edredo-nes. Modelo Cantidad* PWM 912 2 almohadas o 1 edredón PWM ...
es - Relación de programas 165 Información general sobre la desinfección ¿Qué significa «desinfección»? Eliminación y reducción del número de gérmenes que transmiten enfermedades de maneraque no quepa esperar un contagio o infección. Desinfección térmica La desinfección térmica se lleva a cabo aplic...
es - Relación de programas 166 Lista de la VAH VAH = Unión de Higiene Aplicada (Verbund für angewandte Hygiene), organización regis-trada (antiguamente DGHM = Sociedad Alemana de Higiene y Microbiología, Deutsche Ge-sellschaft für Hygiene und Mikrobiologie). En la lista de la VAH se describen los pr...
es - Relación de programas 168 Relación de programas Desinfección Desinfección térmica y Desinfección termoquímica son programas para la desinfección de los tejidos.Se realiza una desinfección termoquímica o térmica. Deben utilizarse detergentes adecua-dos para la desinfección termoquímica. Todos lo...
es - Relación de programas 170 Des. termoq. Del. 20 min 40 °C Capacidad de car-ga/cantidad Tipo de tejido Algodón, tejidos mixtos, cortinas 1:10 PWM 912 – 11 kg PWM 916 – 14 kg PWM 920 – 18 kg Desarrollo del pro-grama Desinfección 40 °C*, tiempo de mantenimiento20 minutos ritmo de lavado «delicado»3...
es - Relación de programas 171 Relación de programas Limpieza de edificios Este programa está indicado para lavar, desinfectar e impregnar (en diferentes grados dehumedad) fundas de fregado de algodón o tejidos mixtos, felpudos, discos de pulido o ba-yetas empleados por empresas de servicios de limp...
es - Relación de programas 172 Programa Mopas Para evitar suciedad intensa en la máquina, sacuda las mopas antes de introducirlas en lamáquina. Mopas estándar 60 °C (frío a 90 °C) Capacidad de car-ga/cantidad Tipo de tejido Fundas para mopas de algodón, viscosa, poliés-ter, microfibra 1:9 PWM 912 ...
es - Relación de programas 173 Mopas desinf. térmica 90 °C Capacidad de car-ga/cantidad Tipo de tejido Fundas para mopas de algodón, viscosa, poliés-ter, microfibra 1:9 PWM 912 – 12 kgPWM 916 – 16 kg PWM 920 – 20 kg Número de unidades Ver la tabla «Capacidad de carga de mopas» Desarrollo del pro-gra...
es - Relación de programas 174 Des. termoq. Mopas 10 min 70 °C Capacidad de car-ga/cantidad Tipo de tejido Fundas para mopas de algodón, viscosa, poliés-ter, microfibra 1:10 PWM 912 – 11 kg PWM 916 – 14 kg PWM 920 – 18 kg Desarrollo del pro-grama Centrifugado previobaño de aclarado previo2.º baño de...
es - Relación de programas 175 Des. tq. mop. 20 min+ rtu 60 °C Capacidad de car-ga/cantidad Tipo de tejido Fundas para mopas de algodón, viscosa, poliés-ter, microfibra 1:10 PWM 912 – 11 kg PWM 916 – 14 kg PWM 920 – 18 kg Desarrollo del pro-grama Desarrollo del programa como Mopas desinfec-ción term...
es - Relación de programas 176 El programa Mopas rtu es apto para el almidonado posterior de mopas secas y limpias. Para el almidonado se añade una solución desinfectante.Las cantidades de dosificación deben ajustarse in situ y se debe comprobar que se cum-plen las normas de desinfección. La capacid...
es - Relación de programas 177 Programa para alfombras y esteras Colchonetas 40 °C (frío a 60 °C) Capacidad de car-ga/cantidad Tipo de tejido Felpudos 1:15 PWM 912 – máx. 7,4 kg PWM 916 – máx. 9,4 kg PWM 920 – máx. 12 kg Desarrollo del pro-grama Preaclaradolavado principal hasta 60 °C, tiempo de lav...
es - Relación de programas 178 Programas para paños Estos programas están indicados para lavar, desinfectar e impermeabilizar (en diferentesgrados de humedad) paños de algodón, tejidos mixtos o microfibra empleados por empre-sas de servicios de limpieza de edificios. Paños estándar 60 °C (frío a 90 ...
es - Relación de programas 179 Paños Desinf. térmica 90 °C Capacidad de car-ga/cantidad Tipo de tejido Paños de limpieza de algodón, viscosa, poliéster,microfibra 1:18 PWM 912 – 6,0 kg PWM 916 – 8,0 kg PWM 920 – 10 kg Número de unidades Ver la tabla «Capacidad de carga de paños» Desarrollo del pro-g...
es - Relación de programas 181 Paños rtu Capacidad de car-ga/cantidad Tipo de tejido Paños de limpieza de algodón, viscosa, poliéster,microfibra 1:18 PWM 912 – 6,0 kg PWM 916 – 8,0 kg PWM 920 – 10 kg Número de unidades Ver la tabla «Capacidad de carga de paños» Desarrollo del pro-grama 1 aclaradolue...
es - Relación de programas 182 Relación de programas Bomberos Estos programas están indicados para lavar e impregnar trajes de bomberos Nomex, cha-quetas, pantalones, mascarillas y trajes de protección química. Programa para trajes de protección Ropa protección 60 °C (frío hasta 60 °C) Proporción de...
es - Relación de programas 183 Ropa protección para preparar la ropa No coloque etiquetas en la ropa sucia. En la medida de lo posible, retire los mosquetones o introdúzcalos en un bolsillo lateral yciérrelo. Cierre los velcros o cúbralos con una banda de velcro. Lave el relleno de lana virg...
es - Relación de programas 184 Programas Mascarillas Mascarillas comprende programas pensados para el lavado y la desinfección de másca- ras respiratorias con goma de ajuste. A fin de proteger los visores, gire las cintas de las mascarillas antes de introducirlas en lamáquina. Introduzca cada un...
es - Relación de programas 186 Programa para trajes de protección química CSA es un programa pensado para el lavado de trajes de protección química de los cuer- pos de bomberos.Para ello se lleva a cabo una desinfección termoquímica (60 °C/20 minutos) para la quehay que utilizar un detergente adecua...
es - Relación de programas 187 Programas Ropa de rescate Cascos * 60 °C (frío hasta 60 °C) Proporción de lle-nado/capacidadde carga Tipo de tejido Cascos de protección de bombero PWM 912 – 3 cascos PWM 916 – 4 cascos PWM 920 – 5 cascos Desarrollo del pro-grama Prelavado hasta 40 °CLavado principal h...
es - Relación de programas 188 Correas * 40 °C (frío hasta 40 °C) Proporción de lle-nado/capacidadde carga Tipo de tejido Acoplamientos para bomberos también con com-ponentes de aluminio y con cuero PWM 912 – 8 acopladores PWM 916 – 12 acopladores PWM 920 – 15 acopladores Desarrollo del pro-grama La...
es - Relación de programas 189 Ropa de rescate * 60 °C Proporción de lle-nado/capacidadde carga Tipo de tejido Nomex y algodón ver la tabla «Capacidad de carga para ropa de rescate» Desarrollo del pro-grama Prelavado hasta 40 °Cdesinfección* 60 °C, tiempo de mantenimiento20 minutos2 aclarados (opcio...
es - Relación de programas 191 Relación de programas WetCare La «limpieza húmeda» de WetCare es un procedimiento de limpieza suave que utilizaagua y producto para el mantenimiento especiales para prendas que hasta ahora solo po-dían limpiarse químicamente. WetCare sensitiv 25 °C (entre lavado en frí...
es - Relación de programas 192 Relación de programas Outdoor Outdoor 40 °C (frío a 40 °C) Capacidad de car-ga/cantidad Tipo de tejido Poliamida y artículos con membrana 1:15 PWM 912 – 7,4 kg PWM 916 – 9,4 kg PWM 920 – 12 kg Desarrollo del pro-grama Lavado principal hasta 40 °C, tiempo de lavado6 min...
es - Relación de programas 193 Relación de programas Establo Este programa está indicado para lavar e impregnar mantas para caballos, sudaderos, pro-tectores, campanas, vendas, cabezadas de tejido. Mantas para caballos 60 °C (frío hasta 60 °C) Proporción de lle-nado/capacidadde carga Tipo de tejido ...
es - Relación de programas 195 Detergente durante el lavado se debe utilizar un detergente sin blanqueador ni blanqueante óptico.Para las mantas de lana se deben utilizar productos con un valor de pH algo bajo. Dado elcaso, se pueden añadir también productos enzimáticos.Conviene evitar el uso de pro...
es - Relación de programas 196 Relación de programas Deporte Ropa de deporte 40 °C (frío a 60 °C) Capacidad de car-ga/cantidad Tipo de tejido Mallas y pantalones de fibra sintética o tejidosmixtos 1:20 PWM 912 – 5,6 kg PWM 916 – 7 kg PWM 920 – 9 kg Desarrollo del pro-grama Lavado principal hasta 60 ...
es - Relación de programas 197 Relación de programas Ropa de trabajo Aceite/grasa 60 °C (frío a 90 °C) Capacidad de car-ga/cantidad Tipo de tejido Ropa de trabajo, toallas, tapas y paños de limpie-za de algodón o tejidos mixtos sucios de aceite ograsa 1:10 PWM 912 – 11 kg PWM 916 – 14 kg PWM 920 – 1...
es - Relación de programas 198 Relación de programas Fecales (Laundry Regulation HTM 01–04) Los programas Fecales están pensados para ropa interior, así como ropa de cama y toallascon elevado grado de suciedad. La desinfección se realiza siguiendo las indicaciones del National Health Service (ReinoU...
es - Relación de programas 199 Desarrollo del programa Fecales Fecales sensitiv 65 °C Paso de pro- grama Relación del agua de la- vado* Parada térmica Temperatura Temperatura tiempo de manteni- miento (tiempo de lavado 2) Tiempo de lava- do programado aprox. Prelavado 1 1:7 no fría - 5 min Prelavad...
es - Relación de programas 200 Relación de programas Recuperación de agua (WRG) Limpiar WRG 80 °C Capacidad de car-ga/cantidad Desarrollo del pro-grama VaciadoAclaradoVaciadoLimpiezaVaciadoAclaradoVaciado Vaciar WRG Fría Desarrollo del pro-grama Vaciado
es - Relación de programas 201 Resumen de programas Eco Los programas Eco son programas opcionales que se pueden descargar en internet. Ropa de color Eco 40 °C (frío hasta 40 °C) Proporción de lle-nado/capacidadde carga Tipo de tejido Prendas de algodón, lino o tejidos mixtos algo su-cios, p. ej. ro...
Manual de instalación Miele PWM 916 [SD DV DD ST]




















































































































































Resumen
es - Indicaciones para la instalación *INSTALLATION* 76 Explicación de las indicaciones de advertencia y seguridad si-tuadas en la máquina Leer las instrucciones de manejo Leer las instrucciones, p. ej., las instrucciones de ins-talación Precaución, superficies calientes Precaución, tensión de hasta...
es - Indicaciones para la instalación *INSTALLATION* 77 Emplazamiento Transporte la lavadora con una carretilla elevadora hasta el lugar deemplazamiento y retire el embalaje de transporte. La lavadora debe colocarse sobre una superficie totalmente lisa y hori-zontal que soporte como mínimo la carga ...
es - Indicaciones para la instalación *INSTALLATION* 78 Para garantizar un funcionamiento óptimo y eficiente, la lavadora de-be apoyarse correctamente y de forma horizontal sobre las cuatrobases de apoyo. En caso contrario, aumenta el consumo de agua yenergía y la lavadora podría desplazarse. Una ...
es - Indicaciones para la instalación *INSTALLATION* 79 Una conmutación de tensión debe realizarla exclusivamente el Ser- vicio Post-venta de Miele o un distribuidor autorizado. Al hacerlo, hayque tener en cuenta la instrucción de cambio de cableado del planode conexiones. La lavadora puede conect...
es - Indicaciones para la instalación *INSTALLATION* 80 Para la conexión de agua en principio solo deben utilizarse las man-gueras de entrada suministradas. Las uniones con tornillos están sometidas a la presión de las tu- berías.Abra lentamente los grifos para comprobar si las conexiones sonestan...
es - Indicaciones para la instalación *INSTALLATION* 81 Si no se dispone de una tubería de agua caliente, la manguera de en-trada del agua caliente deberá conectarse también a la toma de sumi-nistro de agua fría. Para estos casos, se necesita una pieza en Y adi-cional. De esta manera, se necesitará ...
es - Indicaciones para la instalación *INSTALLATION* 82 Conexiones de bomba dosificadora en la parte posterior del aparato Las conexiones 1 y 2 están previstas para la dosificación de pastas y se pueden utilizar también para dispositivos de dosificación de pre-sión alta con acompañamiento de agua. L...
es - Indicaciones para la instalación *INSTALLATION* 83 Extras/accesorios especiales Los accesorios solo se pueden ampliar o montar con la autorizaciónexpresa de Miele.Si se utilizan o instalan otros componentes no autorizados se pier-den los derechos de garantía y/o responsabilidad sobre el product...
es - Indicaciones para la instalación *INSTALLATION* 84 Interfaz WiFi/LAN La lavadora está equipada con una interfaz WiFi/LAN para el inter-cambio de datos. La interfaz de datos proporcionada en la conexión LAN cumple con lanorma SELV (tensión extrabaja) según la norma EN 60950. La cone-xión LAN se ...
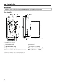
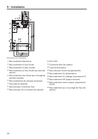
es - Instalación 85 Estándar SI Medidas en milímetros a Conexión eléctrica b Conexión a agua fría c Conexión a agua caliente d Conexión a agua fría agua dura (opcional) e Conexión a agua fría para dosificación dedetergente líquido l Tubo de desagüe n Conexión SI, entrada de agua o Conexión SI, desag...
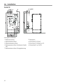
es - Instalación 87 Zócalo SI Medidas en milímetros a Conexión eléctrica b Conexión a agua fría c Conexión a agua caliente d Conexión a agua fría agua dura (opcional) e Conexión a agua fría para dosificación dedetergente líquido l Tubo de desagüe n Conexión SI, entrada de agua o Conexión SI, desagüe...
es - Instalación 89 Estándar SD Medidas en milímetros a Conexión eléctrica b Conexión a agua fría c Conexión a agua caliente d Conexión a agua fría agua dura (opcional) e Conexión a agua fría para dosificación dedetergente líquido l Tubo de desagüe p Conexión SD (vapor directo) r Válvula de vapor so...
es - Instalación 91 Zócalo SD Medidas en milímetros a Conexión eléctrica b Conexión a agua fría c Conexión a agua caliente d Conexión a agua fría agua dura (opcional) e Conexión a agua fría para dosificación dedetergente líquido l Tubo de desagüe p Conexión SD (vapor directo) r Válvula de vapor solo...
es - Datos técnicos 96 Variantes de tensión y datos eléctricos 3N AC 400 V SI/SD Tensión nominal 3N AC 400 V Frecuencia 50/60 Hz Fusible necesario (en el lugar de montaje) 16 A Consumo de potencia 2,3 kW Sección mínima del cable de conexión 1,5 mm² Conexión de agua Conexión a agua fría Presión de fl...
Guía rápida Miele PWM 916 [SD DV DD ST]




























































































































































Resumen
es - Su contribución a la protección del medio ambiente 5 Eliminación del embalaje de transporte El embalaje protege a la lavadora de daños durante el transporte. Losmateriales del embalaje se han seleccionado siguiendo criterios eco-lógicos y en función de su posterior tratamiento en plantas de rec...
es - Advertencias e indicaciones de seguridad 6 Documentación ampliada Este documento contiene información básica. Encontrará el manualde instrucciones de manejo completo y documentación actual relati-va a su aparato, en el sitio web de Miele: https://www.miele.es/professional/inactivem-manual-de-in...
es - Advertencias e indicaciones de seguridad 7 Aplicación adecuada Esta lavadora ha sido diseñada exclusivamente para lavar tejidos que hayan sido etiquetados por el fabricante como aptos para el la-vado a máquina. Cualquier otro tipo de utilización podría ser peligro-so. El fabricante no se hace...
es - Advertencias e indicaciones de seguridad 8 Uso erróneo previsible Nunca utilice productos de limpieza que contengan disolventes (p. ej., bencina) en la lavadora. Los componentes del aparato puedenresultar dañados y emitir vapores tóxicos. ¡Existe riesgo de incendio y de explosión! Cuando la...
es - Advertencias e indicaciones de seguridad 9 Seguridad técnica Compruebe que la lavadora no presenta ningún tipo de daño en el exterior antes de su emplazamiento. Una lavadora dañada no se de-be emplazar ni poner en funcionamiento. La seguridad eléctrica de esta lavadora solo quedará garantiz...
es - Advertencias e indicaciones de seguridad 11 Uso apropiado La capacidad de carga máxima es de 12 kg de ropa seca para la PW 912, de 16 kg para la PWM 916 y de 20 kg para la PW 920. En elcapítulo «Relación de programas» encontrará las cantidades de cargareducidas para cada programa. Retire lo...
es - Advertencias e indicaciones de seguridad 13 El cloro y los daños en los componentes Con el uso cada vez mayor de cloro aumenta la probabilidad de dañar los componentes. El uso de productos que contienen cloro como, por ejemplo, el hi- poclorito sódico y lejías de cloro en polvo puede dañar ...
es - Advertencias e indicaciones de seguridad 14 Accesorios Los accesorios pueden acoplarse o montarse solo si están expre- samente autorizados por Miele. El montaje de piezas no autorizadasinvalidará todo derecho de garantía. Reciclaje de apa-ratos inservibles Inutilice el cierre de la puerta c...
es - Descripción de la máquina (con cajetín de detergente) 15 Variantes con cajetín de detergente (WEK) ⑪ ⑥ ⑦ ⑧ ⑨ ⑩ ⑫ ① ② ③ ④ ⑤ ⑧ ⑬ ⑮ ⑭ ⑯ ⑰ ⑱ a Display Véase el capítulo «Funcionamiento de loselementos de manejo» b Interruptor de parada de emergencia véase el capítulo «Funcionamiento de loselementos...
es - Descripción de la máquina (con cajetín de detergente) 16 Variantes de aparato sin cajetín de detergente (WEK) ① ② ③ ④ ⑤ ⑥ ⑦ ⑧ ⑨ ⑩⑪ ⑦ ⑫ ⑭ ⑬ ⑮ ⑯ ⑰ a Display Véase el capítulo «Funcionamiento de loselementos de manejo» b Interruptor de parada de emergencia véase el capítulo «Funcionamiento de lose...
es - Manejo 17 Panel de mandos a Tecla sensora Idioma Para seleccionar el idioma delusuario actual.Tras finalizar el programa se vi-sualiza de nuevo el idioma deusuario. b Tecla sensora Atrás Regresa al nivel anterior delmenú. c Display Touch d Tecla sensora Start/Stop Inicia el programa de ...
es - Manejo 18 Teclas sensoras y display Touch con teclas sensoras Las teclas sensoras , y Start/Stop , así como las teclas sen- soras del display, reaccionan al tocarlas con los dedos. Cada pulsa-ción se confirma con un sonido de tecla. Puede cambiar o desconec-tar el volumen del sonido del tec...
es - Manejo 20 OK 12:00 3 4 2 1 5 6 7 8 0 9 Hora En cuanto haya introducido un valor válido, la tecla OK aparece mar- cada en verde. Menú desplegable En el menú desplegable es posible visualizar más información, p. ej.,sobre un programa de lavado. 11:02 2:27 Ropade color Estado T. resta...
es - Manejo 21 Manejo de la variante de lavandería En función del estado de programación, el menú de acceso puedemostrarse de diferentes formas (véase el capítulo «Nivel de usuario»,apartado «Manejo»). El manejo simplificado se realiza a través de la selección directa. Losusuarios no pueden modifica...
es - Preparación del lavado 22 Vaciar los bolsillos Vacíe todos los bolsillos. Daños producidos por objetos extraños. Los cuerpos extraños como clavos, monedas o clips pueden dañarlas prendas o la máquina.Revise las prendas antes de lavarlas y retire los posibles cuerposextraños. Capacidad de ca...
es - Preparación del lavado 23 Cargar la lavadora Conecte la lavadora con la tecla . Abra la puerta tirando del tirador. Coloque la ropa desdoblada y suelta en el tambor. Las prendas dedistinto tamaño mejoran el resultado del lavado y se distribuyenmejor durante el centrifugado. En el caso d...
es - Seleccionar un programa 24 Conectar la lavadora Pulse la tecla . Seleccionar un programa 11:02 Programas Favoritos Operario Ayuda Existen varias opciones para seleccionar un programa. Puede seleccionar un programa en el menú Programas . Pulse la tecla sensora Programas . 11:02 ...
es - Seleccionar los ajustes del programa 25 Seleccionar la carga En algunos programas se puede especificar la carga para permitiruna dosificación externa en función de la carga. Pulse la tecla sensora Peso . Introduzca un valor válido para la cantidad de carga. El display cambia al menú Vista ...
es - Lavado con cajetín de detergente 26 Introducción de detergente a través del cajetín En el caso de los programas estándar se introduce detergente enpolvo para el lavado principal en la bandeja de admisión de deter-gente y, si se desea, detergente para el prelavado en la bandeja de admisión ...
es - Lavado con cajetín de detergente 27 Blanqueadores Blanquee únicamente tejidos que estén marcados con el símbolo decuidados Δ . La adición de blanqueadores líquidos solo se puede llevar a cabo enuna bandeja de admisión específica para tal fin. Solo así se garantizaque el producto se incorpora c...
es - Iniciar un programa – Fin del programa 28 Iniciar un programa La tecla sensora Start/Stop parpadea en cuanto es posible iniciar un programa. Pulse la tecla sensora Start/Stop . La puerta se bloquea (símbolo ) y comienza el programa de lavado. Si se ha seleccionado una Preselección de inicio...
es - Instalación 29 Emplazamiento de la lavadora Únicamente podrá emplazar y poner en marcha la lavadora el Ser-vicio Post-venta de Miele o un distribuidor autorizado. Respete lasindicaciones del esquema de instalación. Esta lavadora solo es apta para lavar ropa que no esté impregnadacon sustancias ...
es - Instalación 30 Simplificación del mantenimiento No se deberán sobrepasar las medidas mínimas ni la distancia a lapared con acceso a fin de facilitar al Servicio Post-venta los trabajosposteriores de mantenimiento. Mantenga las medidas mínimas indicadas y la distancia a la pared. Distancia mín...
es - Instalación 31 Seguro de transporte Retire los seguros de transporte Cada uno de los dos seguros de transporte delanteros está fijado contres tornillos hexagonales. El seguro de transporte trasero está fijadocon cuatro tornillos hexagonales. Los seguros de transporte debenretirarse en el lugar ...
es - Instalación 32 Desenroscar los tornillos situados en el borde inferior de la paredposterior y retirar esta última. Suelte los tornillos hexagonales para desmontar los seguros detransporte. Conserve los seguros de transporte. Estos deberán volver a mon-tarse antes de transportar la máquina. ...
es - Instalación 34 Desagüe Desagüe AV de la máquina DN 70, manguito del lugar de instalación DN 70. Caudal a corto plazo 200 l/min.Si la pendiente de desagüe es demasiado inclinada, se deberá colo-car un tubo de ventilación para que no se pueda producir el vacío enel sistema de desagüe de la lavad...
es - Datos técnicos 35 Datos del aparato PWM 912 Conexión eléctrica Tensión nominal véase la placa de características Frecuencia véase la placa de características Consumo de potencia véase la placa de características Consumo de corriente véase la placa de características Fusible necesario véase la p...
es - Datos técnicos 36 Datos del aparato PWM 916 Conexión eléctrica Tensión nominal véase la placa de características Frecuencia véase la placa de características Consumo de potencia véase la placa de características Consumo de corriente véase la placa de características Fusible necesario véase la p...
es - Datos técnicos 37 Datos del aparato PWM 920 Conexión eléctrica Tensión nominal véase la placa de características Frecuencia véase la placa de características Consumo de potencia véase la placa de características Consumo de corriente véase la placa de características Fusible necesario véase la p...
es - Datos técnicos 38 Declaración de conformidad de la UE Por la presente, Miele declara que esta lavadora cumple con los requisitos de la directivaeuropea 2014/53/EU.En el siguiente link encontrará el texto completo de la declaración de conformidad euro-pea: - En www.miele.de/professional/index.ht...
es - Protección de datos de la WiFi 39 Protección de datos y seguridad de los datos En cuanto se activa la función de conexión en red y su aparato se haconectado a Internet, este envía los siguientes datos a la nube deMiele: - Número de fabricación del aparato - Modelo de aparato y equipamiento técn...
Other Miele Otros Manuals
-
Miele APWM 063 Manual de instalación
-
Miele UO 811-30 Manual de instalación
-
Miele UO 413-30 Manual de instalación
-
Miele UO 814-25 Manual de instalación
-
Miele UO 818/418-25 Manual de instalación
-
Miele APWM 020 Manual de uso
-
Miele APWM 020 Manual de instalación
-
Miele SC Manual de instalación
-
Miele PR Manual de instalación
-
Miele FP 900 Manual de instalación
-
Miele RP 900 Manual de instalación
-
Miele APWM 019 Manual de uso
-
Miele APWM 019 Manual de instalación
-
Miele PR 900 Manual de instalación
-
Miele A 830/1 Manual de uso
-
Miele TT 86 Manual de uso
-
Miele RP 1150 Manual de instalación
-
Miele UG 5010 Manual de instalación
-
Miele UO 5010 Manual de instalación
-
Miele APCL 001 Manual de instalación